Chi tiết dự án
- Tên dự án: Thi công hệ thống WiFi ngoài trời cho công ty bất động sản phường Phú Định
- Địa điểm thi công: Phường Phú Định, TP.HCM
- Thời gian thực hiện: 10 ngày
- Yêu cầu: Khảo sát, tư vấn giải pháp và thi công hệ thống WiFi ngoài trời, đảm bảo khả năng phủ sóng ổn định, tốc độ cao.
Thi công hệ thống WiFi ngoài trời cho công ty bất động sản phường Phú Định
iSolution vừa hoàn tất dự án thi công hệ thống WiFi ngoài trời cho Công ty bất động sản phường Phú Định. Trong vòng 10 ngày, dự án không chỉ đáp ứng yêu cầu về hiệu suất phủ sóng mà còn đảm bảo tính ổn định, bền bỉ trong điều kiện môi trường khắc nghiệt. Đây là một trong những bước khẳng định năng lực triển khai giải pháp công nghệ hạ tầng ngoài trời của iSolution dành cho doanh nghiệp, công trình và khu dân cư.
Giải pháp iSolution cung cấp
Đối với dự án lần này, iSolution đã lựa chọn thiết bị Outdoor Access Point chuyên dụng, có khả năng chịu thời tiết tốt, chống nước, chống bụi và đảm bảo tín hiệu WiFi mạnh mẽ, ổn định cho toàn khu vực cần phủ sóng.




Hệ thống được thiết kế linh hoạt theo thực địa, kết nối đồng bộ với hạ tầng mạng có sẵn của công ty, đồng thời hỗ trợ quản lý tập trung và bảo mật cao.
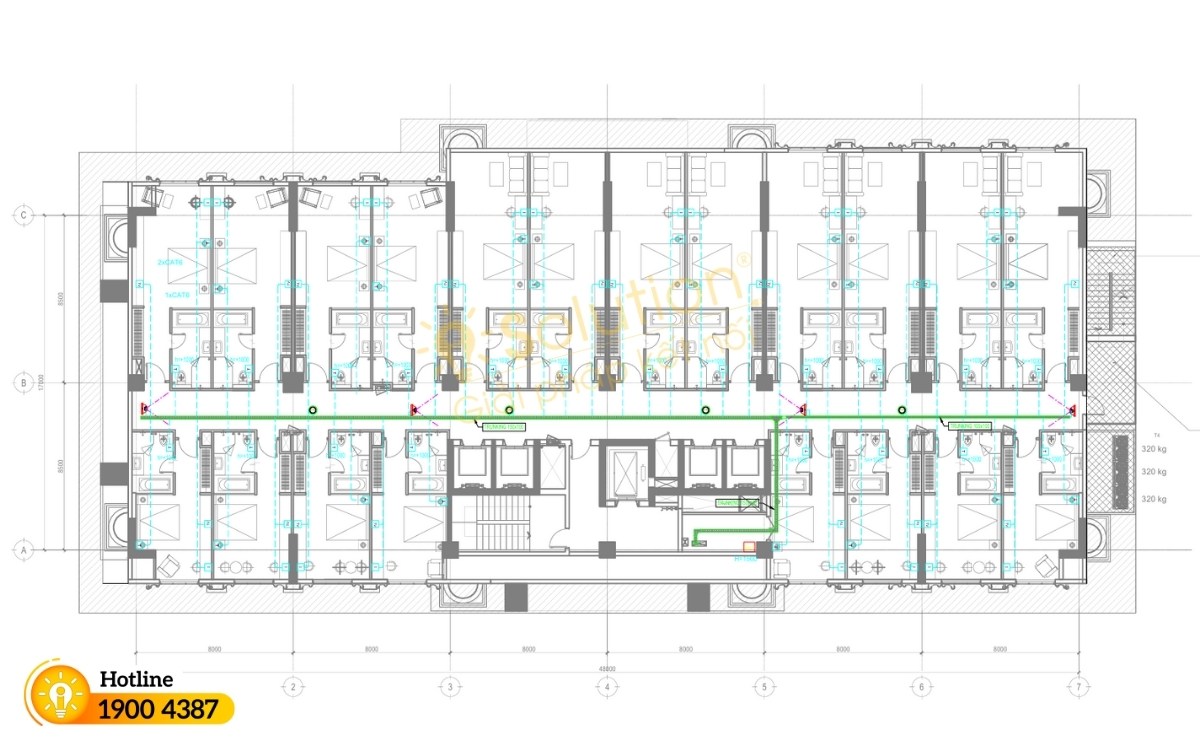
Sơ đồ thi công




Lợi ích mang lại
- Phủ sóng toàn diện khu vực ngoài trời, giúp nhân viên và khách hàng truy cập Internet dễ dàng, liền mạch.
- Tăng cường hiệu suất làm việc, hỗ trợ giao tiếp nội bộ và quản lý vận hành thông minh.
- Đảm bảo độ bền lâu dài nhờ sử dụng thiết bị công nghiệp đạt chuẩn IP chống nước – chống bụi.
- Dễ dàng bảo trì, nâng cấp hệ thống trong tương lai.



Dự án đã được hoàn thành đúng tiến độ, vận hành trơn tru và nhận được đánh giá tích cực từ phía khách hàng. iSolution tiếp tục khẳng định vị thế là đối tác công nghệ đáng tin cậy, chuyên thi công các giải pháp WiFi chuyên biệt cho doanh nghiệp, nhà xưởng, công trình và khu dân cư.





Dự án khác
Thi công mạng LAN cho ngân hàng tại Thanh Hóa
iSolution đã bước vào “tuổi” thứ 8, đồng nghĩa hơn 3000 ngày đi vào hoạt động với sự đồng hành của hàng trăm khách hàng lớn nhỏ. Ngược dòng quá khứ, trong suốt hành trình hoạt động của mình, đôi lần các vị khách trong lần đầu làm việc với iSolution đã từng thắc mắc…
Nâng cấp hạ tầng mạng – camera – báo động – báo cháy cho VIB Hưng Lợi, Cần Thơ
Khách hàng trong dự án lần này là Ngân hàng Quốc tế (VIB) – Chi nhánh Hưng Lợi, Cần Thơ. Với nhu cầu mở rộng hoạt động và nâng cao trải nghiệm dịch vụ cho khách hàng, VIB mong muốn cải tạo, nâng cấp toàn bộ hạ tầng công nghệ và hệ thống kỹ thuật…
Thi công hạ tầng mạng – camera – WiFi Mesh tại Hệ thống Đa khoa Phường Sài Gòn
iSolution tiếp tục đồng hành cùng các đơn vị y tế uy tín khi triển khai dự án hạ tầng công nghệ thông tin tại Hệ thống Đa khoa Phường Sài Gòn. Dự án không chỉ nâng cấp hệ thống mạng nội bộ mà còn tích hợp giải pháp camera giám sát và WiFi mesh…
Chi tiết dự án
- Tên dự án: Thi công hệ thống WiFi ngoài trời cho công ty bất động sản phường Phú Định
- Địa điểm thi công: Phường Phú Định, TP.HCM
- Thời gian thực hiện: 10 ngày
- Yêu cầu: Khảo sát, tư vấn giải pháp và thi công hệ thống WiFi ngoài trời, đảm bảo khả năng phủ sóng ổn định, tốc độ cao.